Charities and social enterprises across Inverness and the Highlands are being invited to a dedicated funding event aimed at helping them secure resources and expertise to grow their community impact. Taking place on Thursday, 25th September at Eden Court, Inverness, the session will bring together l
Communities Housing Trust
Scotland’s community housing, land and development bodies have launched a new Community Led Housing Alliance to help tackle the national housing crisis and enable communities everywhere to thrive. The new alliance will campaign for greater support for community led housing from the next Scotti
A new affordable housing development in Inverfarigaig, south of Loch Ness, has been completed, marking a significant milestone for the local community. The project, named Dodd’s Park, is set to deliver much-needed housing in the area, with four three-bedroom homes for affordable rent and two h
The Scottish Land Commission is inviting planning and housing professionals and community groups to an online briefing to hear directly from the Communities Housing Trust (CHT) about how they successfully unlocked land for housing in a remote rural community. This event will highlight the crucial ro
Community organisation Knoydart Foundation (KF) has gained planning permission to build affordable homes in a remote Highland area.
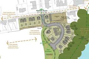
Andrew Black Design has been granted planning permission in principle for 19 houses in Kinloch Rannoch.
Colonsay Community Development Company (CCDC) has confirmed that the first phase of its new housing project at Scalasaig, Colonsay is due to be handed over later this summer. The development provides a mix of 2 and 3-bedroom homes comprising four homes for affordable rent, two homes for discounted s
Planning permission in principle is being sought for 19 houses in Kinloch Rannoch.
Rural communities are being urged to share success stories from their local area as the Helping it Happen Awards 2024 nominations are launched.
Up to £960,000 is to be made available to support the delivery of affordable homes and facilities in remote and rural areas. Provided jointly by the Scottish Government and Nationwide Foundation, funding for Communities Housing Trust and South of Scotland Community Housing over three year
Scourie Community Development Company (SCDC) has received £20,000 from The Highland Council to take forward plans to build eight affordable homes on community-owned land. The project, led by SCDC with support from the Communities Housing Trust, also received £15,000 in feasibility fundin
The Communities Housing Trust has been awarded £94,490 from the Highland Council’s Community Regeneration Fund to take forward a project to provide new affordable homes and woodland crofts in Glengarry, to help repopulate the glen. The Inverness-based charity and Glengarry Community Wood
Jimmy Black explores Fit Homes, modular building, the Rural Housing Burden and shifting mid-market rents out of the private sector… all inspired by the latest episode of the Scottish Housing News Podcast.
As social housing organisations across the country navigate a host of issues from an inadequate number of affordable homes, a cost of living crisis and an ageing population, for those working and living in rural areas these issues are compounded by a unique set of circumstances such as a lack of loc
The Assynt Development Trust (ADT) has been awarded £114,000 to take forward the community-led development of affordable homes and community facilities on former glebe land between Lochinver and Glencanisp. ADT has received £44,000 from the Highland Council’s Community Regeneration

